|
|  | 
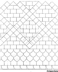
Villa Oppenheim Die Rekonstruktion des Schieferdaches der Villa Oppenheim durch das Architekturbüro erfolgte durch ein altes Foto, aus dem ein Ausschnitt vergrößert wurde.
In folgenden Arbeitsschritten konnte die ursprüngliche Musterung herausgefunden werden: "Ermittlung der Steigung der Ortssteine, Festlegung der Größe der Quadrate (1.10/1.10), Bestimmung der Ortsteine und der Musterung (französisch) sowie der oberen und unteren Reihen mit Bischofsmützen. Aus den ermittelten Vorergebnissen sind Skizzen, aus der die Steinhöhe (45 cm) und die Überdeckung ersichtlich waren, angefertigt worden.An Hand der Skizze wurde ein Modell 1:1, an dem die skizzierten Ergebnisse überprüft und die Steigung der Ortssteine auf 45° festgelegt werden konnte, angefertigt. Die Reihe konnte nun angelegt, aufgebaut und die Felder gerastet werden. Die Deckung der Spitzgauben wurden mit Spitzwinkelwaben oder auch Spitzwinkelschablonen nach demselben Verfahren herausgefunden und auch die Größe der Ortssteine festgelegt (13/16). Die großen Ausrundungen der Grate über dem Mittelteil der Westseite konnten mittels Rechteckschablonen 20/40 und ent- sprechenden kleineren Bischofsmützen gedeckt werden." (Das Dachdecker-Handwerk 24/88.)
 | |  | Verlegung des Daches | | verlegung des Daches an Hand des Verlegungsschemas |
 | |  | Abgerundeter Grat mit Rechteck-Doppeldeckung | | Dachdeckungsarbeiten: S&G Dachbaugesellschaft |
 | |  | Die Villa Oppenheim mit ornamentierten Schieferdach | | Diese Form der Deckung im Zusammenhang mit Kupfer, stellt für Berlin eine Besonderheit dar. |
|
 |
|  |
|  |
 | ISGOS-Architektur | isgos-berlin@t-online.de | Tel. 030-3125511 |