Gesundheitsbauten aktuell
Planung der Erweiterung und Modernisierung der stationären Einrichtung des Haus der Blinden in Bremen. Die Konzeptentwicklung wird gefördert durch das Kuratorium Deutsche Altershilfe in Köln (2014).
 |
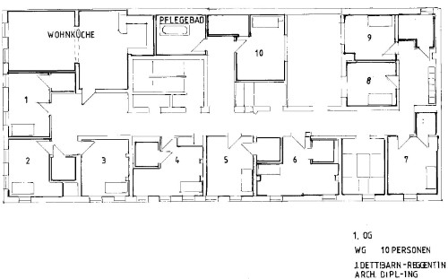
Um- und Anbau eines Blindenheimes Entwurf: Arch. Dipl. Ing. Dettbarn-Reggentin Zeichnung: Haupt CADonline
|
Gesundheitsbauten abgeschlossen
Machbarkeitsstudie zur Ambulantisierung einer stationären Einrichtung in einem denkmalgeschützten Gebäude, sowie Umsetzung eines denkmalgeschützten Gebäudes zu Wohngemeinschaften für Demenzkranke in Neuruppin (2012)

Farbgestltungen der Flure und eines DZ für ein Altenheim in Chemnitz.
 |
Rohmodell |

Entwicklung eines Gesamtkonzeptes für die Nutzung von zwei Neubauten für Betreutes Wohnen, die Einrichtung einer Pflegewohngemeinschaft, sowie einer Wohngruppe für Behinderte, einschließlich Entwurf und Vorplanung in Filderstadt (2013).

Konzeptionelle Entwicklung einer optimierten Angebotsstruktur in einer bestehenden vollstationären Pflegeeinrichtung in Berlin-Pankow (2013).
Machbarkeitsstudie zur Umsetzung einer Pflegewohnanlage mit ambulanten Wohngruppen und Betreutem Wohnen in Wandlitz in LK Barnim, im denkmalgeschützen Bereich (Flächendenkmal) (2012).
Machbarkeitsstudie Umbau eines Bürogebäudes mit ca. 6000 qm Nutzfläche zu einem Hotel respektive Pflegeheim in Nürnberg (2011).
Konzeptentwicklung zur Umgestaltung und baulichen Anpassung an veränderte Bewohnerstrukturen unter Berücksichtigung der Einbeziehung eines Gesundheitszentrums in München (2011).
Konzeptentwicklung und Umsetzung einer Tagespflegeoase für síeben schwerst demenzerkrankte Bewohner/innen in Magdeburg (2011). Umbaumaßnahmen mit spezieller Licht- und Farbgestaltung. Das Licht wird digital 24 Stunden gesteuert.

Vorentwurf für Wohn- und Betreuungsangebote für Senioren in der Stadt Bad Kösen. Das 10 ha große Gelände soll eine Mischbebauung mit unterschiedlichen Wohngruppen und flexibler Bauweise aufweisen (2011).
Machbarkeitsstudie zur konzeptionellen und baulichen Entwicklung eines Grundstückes für 55 WE im Betreuten Wohnen in Naumburg/Bad Kösen (Burgenlandkreis) incl. Wirtschaftlichkeitsberechnung (2010).

Seniorenheim in Hessisch Oldenburg
Vorentwurf und Grundlagenermittlung in einem stationären Altenheim. Konzeptentwicklung und Planung von zwei Wohngruppen und einer Pflegeoase und Gemeinschafträume in Hessisch Oldenburg (2010).
Seniorenheim in Cloppenburg
Vorentwurf für die Umgestaltung eines Seniorenheimes EG und OG in Wohngruppen Demenzkranker und einer Pflegeoase in Cloppenburg (2010).
Pflegeheim in Spremberg
Vorentwurf und Grundlagenermittlung in einem ehemaligen Pflegeheim. Konzeptentwicklung und Planung von Betreuten Wohnen und Tagesbetreuung, oder Hospiz und Wohngruppen für suchtgefährdete Personen in Spremberg (2009).
Altenheim in Berlin-Charlottenburg
Gutachten und Konzeptentwicklung zur baulichen Umgestaltung und Modernisierung eines Altenheimes in Berlin-Charlottenburg. Die bauliche Umgestaltung sollte die konzeptionelle Anpassung an neue Pflegekonzepte wie z.B. Wohn- und Hausgemeinschaften und Reha-Maßnahmen mit aufnehmen.
Im Rahmen der Erweiterung sollte der Mittelbau über den Speisesaal um ein Geschoss aufgestockt werden. Darüber hinaus sollte eine Wohngruppe für sechs bis acht Bewohner/innen entstehen (2009).
Weitere Entwürfe einer Tagespflegeeinrichtung (Erweiterung) in Aachen und Planung eines Umbaus einer Hausmeisterwohnung für eine Hausgemeinschaft Pflegebedürftiger in Mönchengladbach (2008).